Refurbishment of this private residential building involved creation of a new covered botanical garden in the rear courtyard.
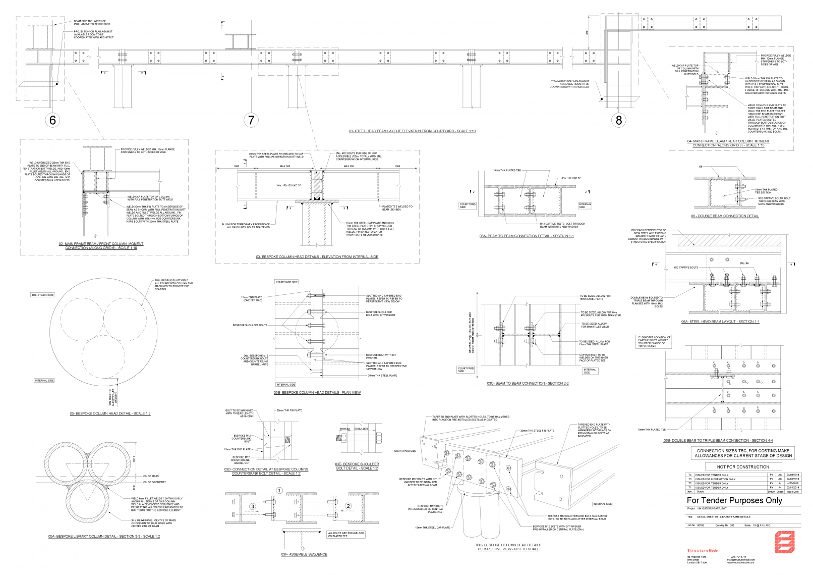
There were very significant structural alterations, which included a steel box frame carrying 4 storeys of existing masonry with bespoke tripartite tubular columns, which we designed using IdeaStatica and detailed beautifully to be fully exposed as an architectural feature.
The project also involved 2 sculptural staircases and architectural metalwork walkways in the rear courtyard.





